«Алек Скотт» — «пароход Тома Сойера» с пятидесятилетним стажем

Авторская модель парохода «Алек Скотт», выполненная по чертежам из книги 1975 года! Исполнение давней мечты состоялось спустя… 50 лет!
«Вся человеческая мудрость заключается в двух словах: ждать и надеяться»
Александр Дюма «Граф Монте-Кристо»
Артефакты истории техники. Сегодня у нас в некотором смысле день особый: 15 июля, середина лета, и «день исполнения желаний», вернее, одного моего давнишнего желания, напрямую связанного с нашим циклом о миссисипских пароходах 19 века. А было так, что в 1975 году, то есть ровно полвека назад, я купил книгу М. Михайлова и О. Соколова «От драккара до крейсера» с рассказами о различных кораблях и технологиях изготовления их моделей. Много там всего было интересного, но мне почему-то больше всего приглянулась модель парохода «Алек Скотт». Видимо, сказалась любовь к книгам Марка Твена. Но как и из чего сделать такую модель? В книге было всё просто: это взять, то приклеить, затем покрасить. Но как именно и из чего «это брать», «клеить» и «красить», не было в голове ни единой идеи.
Проекции этого парохода уже сами по себе раритет. Ведь книге, из которой они были взяты, ровно полвека!
Правда, в 1982 году (уже писал здесь об этом) на помощь мне пришла сама судьба: из двух моделей пароходов «Оксидан» тбилисской фабрики «Сихарули» я как раз и сделал один такой пароход при минимальных затратах труда и материалов. Причем абсолютно новым в нем был только корпус, все остальные детали были взяты от «Оксиданов» и лишь немного переделаны «по месту». Сегодня эта модель стоит 1900 р. (в ней 427 деталей), и понадобятся обязательно две. Но это очень сильно облегчит работу, да еще и много всяких деталей останется, а их тоже можно пустить в дело. То есть для лета, для занятий с детьми это самое «то, что нужно». Ведь дети — это такой «банк», что чем не больше в него вкладываешь, тем больше тебе же приходит под старость…
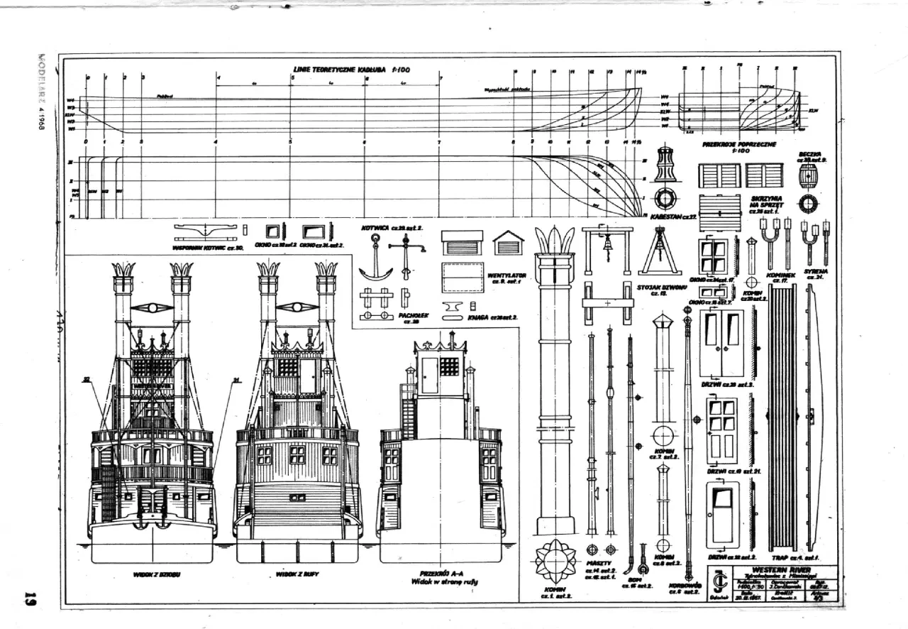
Вот он какой… «Вестерн Ривер»!
И тут мне в руки попал польский журнал «Малый моделяж» с бумажными развертками парохода «Вестерн Ривер», а еще об этом же пароходе я прочитал в журнале «Моделяж» (1967), когда стал работать на пензенской областной станции юных техников в 1980 г.
«Планы моделярские» этого парохода мне прислал один из читателей нашего сайта, за что я ему очень благодарен!
Хороши они тем, что в них показаны все детали этой модели…
И в разных масштабах!
Модели этого парохода, естественно, стали частыми гостями на выставках!
Причем многие моделисты бумагу стали заменять на дерево!
Причина популярности моделей миссисипских пароходов проста. В них нет «мучительного» в изготовлении такелажа парусного корабля, и к тому же это ведь еще и сугубо мирное судно, хотя модели именно военных кораблей во все времена пользовались наибольшей популярностью. И тем не менее… Мирный пароход – это тоже очень красиво!
Многие поэтому стали делать их чисто сувенирные модели. Ну, вот, скажем, такие, как эта
В одном из прошлых материалов один из читателей задал вопрос: а можно ли построить такой пароход в варианте плавающей модели? Да, можно, но только довольно большого размера, не меньше 60 см в длину. И многие моделисты как раз такие модели и делают.

Вот, например, модель парохода «Вилд Вест»

На плаву знаменитая погибшая «Султана» («Султанша»)

Модель парохода «Томас Эдисон»

Чем-то приглянулась своему создателю и вот такая модель…

Кто-то старается сделать модель попроще и берут за образец, скажем, такой грузопассажирский пароход, как «А.Р. Брагг»

«А.Р.Брагг» - вид сзади. Простая модель, что и говорить, но зато хорошо видны и котлы, и дрова, и всевозможные палубные грузы
Среди таких вот простых моделей лично мне очень нравится модель парохода «Ловелл»…
А вообще-то выбрать себе для модели оригинальный пароход-прототип очень даже легко, ведь их же были многие тысячи, причем фотографии их сохранились!

Вот, например, фотографии парохода, буквально заложенного… дровами!

А это пароход с грузом бочек! Так и видится мне диорама: пароход с бочками и людьми. Узкая река. А вокруг пальмы, пальмы, пальмы...

Самая оригинальная модель миссисипского парохода вполне может выглядеть и так!
Пароход «Ривер Белле» украшали даже оленьи рога! А еще у него очень красиво были оформлены кожухи гребных колес… Иллюстрация Дина Корнвелла
На более поздних пароходах вроде «Ривер Квин» (1964) трубы были пониже, но выглядят они ничуть не хуже более ранних образцов, хотя прежнего очарования почему-то нет. Или это мне так кажется?
Пароход Фултона (1817). Очень уж простая модель

Даже в цвете она не очень-то и смотрится

А вот это наш, российский пароход, построенный на Каме в том же 1817 году, но только вот как можно сделать его модель? Как выглядела его силовая установка и гребные колеса. Увы, кроме вот этой проекции ничего больше по этому пароходу разыскать не удалось!
Кстати, если уж кто-то из наших читателей за оставшееся от лета время (и в отпуск) решит заняться постройкой модели «миссисипца», ему будет лучше использовать чертежи вот этого парохода: «Красавица Сент-Луиса». На мой взгляд, она более реалистична, нежели пароход из польского журнала. Тот очень уж какой-то узкий, а этот шире во всех отношениях. И паровые котлы с трубами под палубой на нем видно!
Для изготовления модели вот этих проекций достаточно
Похож на «Красавицу…» и хлопковоз «Город Монро»
Погибшая «Султанша». Здесь только вид сбоку, однако и остальные ее проекции при желании можно отыскать
Кстати, на основе именно «Султанши» вполне можно построить и «свой собственный» двухколесный пароход… «Колумбия». Почему именно «Колумбия»? Да просто потому, что имеется картина американского художника Джона Гаста (см. две последовательно размещенные внизу ее фотографии), которую можно поместить на кожухах гребных колес. Такое украшательство практиковалось, так что никакой отсебятины тут не будет. Заказать две такие картинки, развернув одну из них на 180 градусов, так, чтобы лицо девушки смотрело в нос, а не в корму, можно в виде цветных декалей, и затем перевести их на оба кожуха. Название ниже нужно будет расположить ниже.
Аллегорическая Картина Джона Гаста, изображающая США в своем движении на Запад...

Поскольку пароходов было очень много и самой различной архитектуры, на свою модель вы можете поставить и вот такие винтовые трапы

Ну очень красиво, не так ли?

А вот так выглядят ступеньки этих двух лестниц…
Полезная деталировка. Сделать трубы откидывающимися было бы «высшим пилотажем»!

Интересно, что сегодня выпускается и сборная модель парохода «Мариевилль», о котором речь шла в предыдущем материале. Производит ее фирма «Дайзар»(Disar) в масштабе 1:72. Причем о ней я до этого времени ничего не слышал. Это очень крупный масштаб для судомодели, так что общая длина ее составляет 66,5 см, высота: 26,5 см, а ширина - 14 см.
Фирменная модель в собранном виде

Неужели она еще и плавает?!
Ну а это фотографии деталей моего «Алека Скотта», появившегося в результате пятидесятилетних ожиданий.
Рубка лоцмана
Надписи на ней выполнены из термодекалей. Окна и двери — 0 печать в 3D, перила и украшения вырезаны из полистирола толщиной 0,5-1 мм на станке с ЧПУ. Обшивка палубы и надстроек из сосновых и ольховых реек 1,5(2)х1 мм. Лестницы — нарезка лестницы фирмы «Амати» шириной 8 и длиной 90 мм. Трубы — латунные трубки диаметром 8 мм. Кольца на них из полистирола толщиной 1 мм, при ширине обода 0,5 мм. Паровые свистки выгнуты из полистиролового стержня толщиной 1 мм.
Флаг на носовом флагштоке – термодекаль переведенная не на ткань, а на тонкую бумагу!
Пароотводные трубы – латунные трубочки диаметром 2-3 мм, конусы на них выточены из… ручек от кисточек, зажимавшихся в патрон обыкновенной ручной электродрели
Что же касается основания, то это дубовая отполированная доска, смазанная специальным воском, выявляющим текстуру дерева. Латунные стойки — из «Али-Экспресса». Длина — 38 см. Ширина — 8. Толщина — 2.
Мечты сбываются! Всегда был в этом уверен!
P.S. После отделки модели остались термодекали с надписями «Вестерн ривер», «Алек Скотт», таблички на лоцманскую рубку и множество флагов. Если кто из читателей ВО вдохновится моим примером и захочет сделать такую же модель, пусть обращается в личку. И надписи, и флаги у него будут!
- В. Шпаковский
Обсудим?
Смотрите также:
